Home
Diensten
Portfolio
Over ons
Contact
NL
/
EN
×
Home
Diensten
Portfolio
Over ons
Contact
NL
/
EN
Donkermodus
← Portfolio
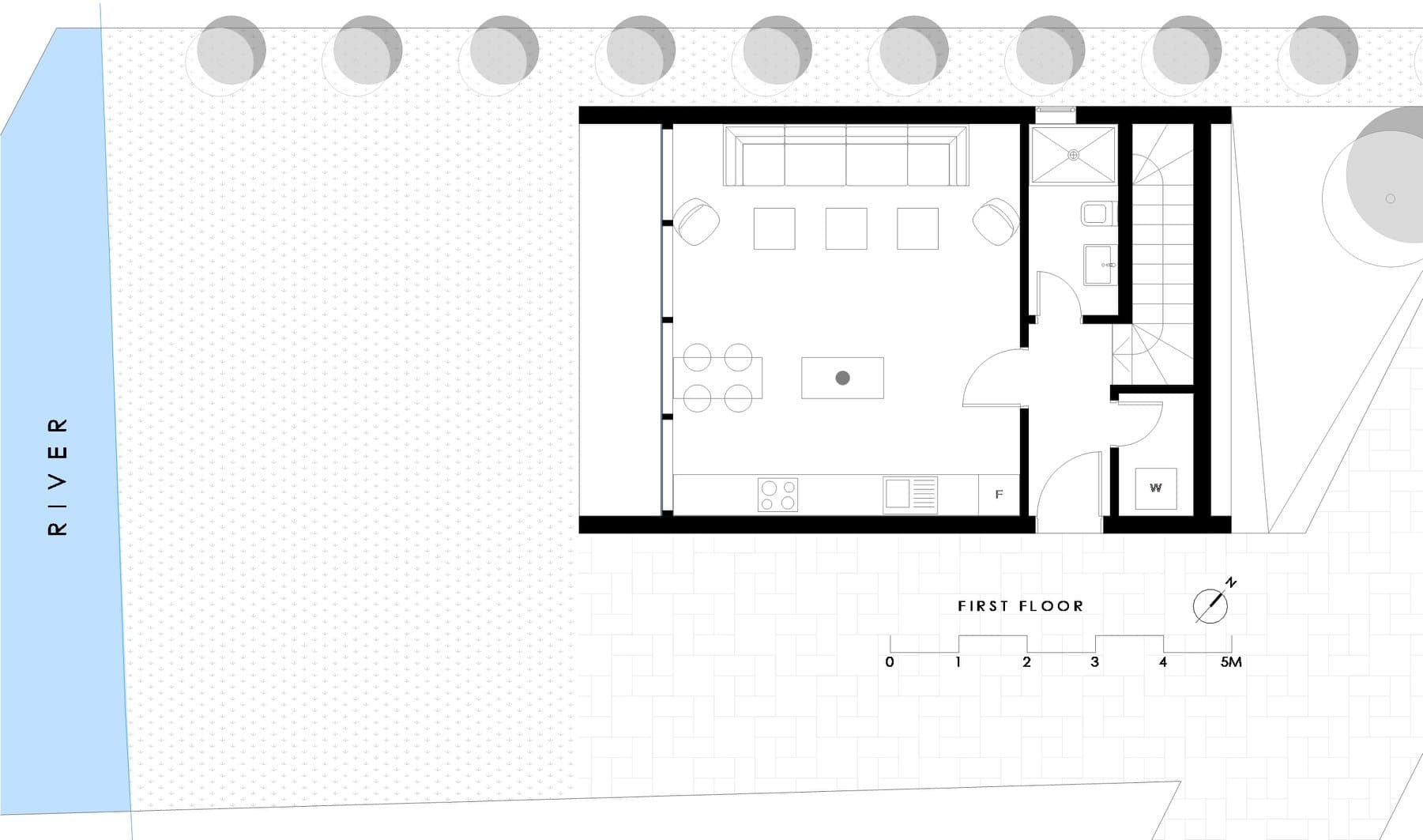
Residentieel complex Pristina
architectuur
2023
Pristina, Kosovo
⊕
⊕
⊕
⊕
⊕
⊕
⊕
⊕
⊕
⊕
⊕
⊕
⊕
⊕
⊕
⊕
⊕
⊕
⊕
⊕
⊕
Modern residentieel complex met 24 appartementen, ontworpen met focus op lichtinval en duurzame materialen.
← Vorig project
interieur · 2025
Q-K-F-2 | Spaces That Inspire Imagination and Exploration
Volgend project →
architectuur · 2025
REST HOTEL | The Aesthetics of Modern Hospitality